芒市镇人民政府

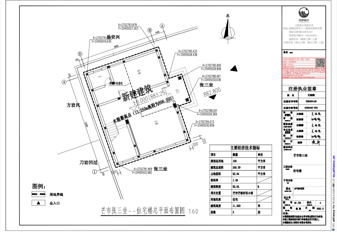
张三坐住宅楼总平面布置图公示

浏览量:175    作者: 日期:2026/2/4
文章来源:镇经济发展办