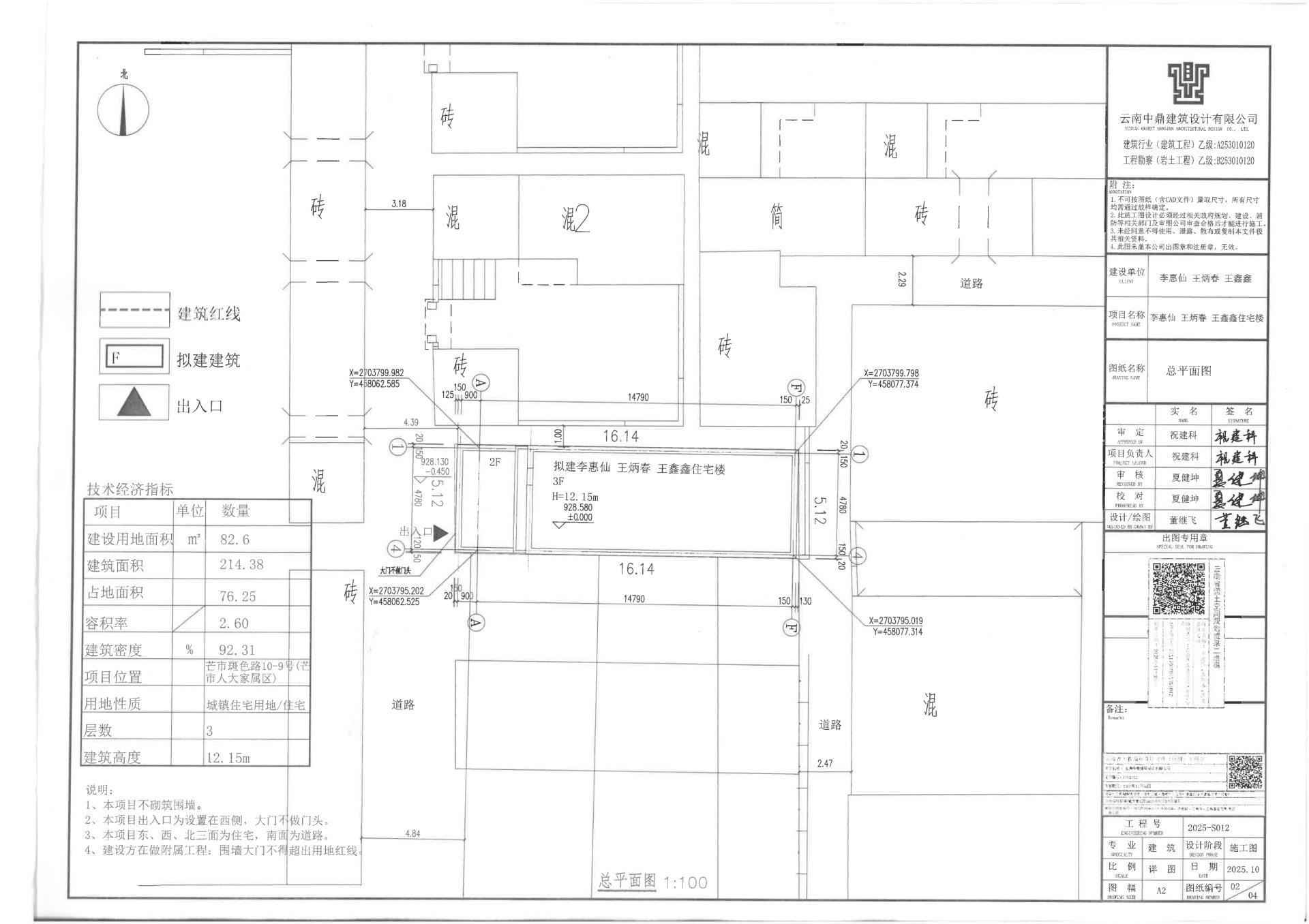
现将王炳春、李惠仙、王鑫鑫办理建设工程规划许可予以批前公示,公示时间:2025年12月24日—2025年12月30日。对公示项目有异议者,请在公示期限内以书面形式将意见和建议反馈到芒市自然资源规划中心(芒市胞波路115号),联系电话:0692-2100556。
[附件:李惠仙、王炳春、王鑫鑫建设工程总平面图]
主办单位:芒市人民政府 滇ICP备17006904号-1
滇公网安备 53310302000146号
政府网站标识码:5331030001 地址:芒市胞波路115号 邮编:678400 电话:0692-2121489