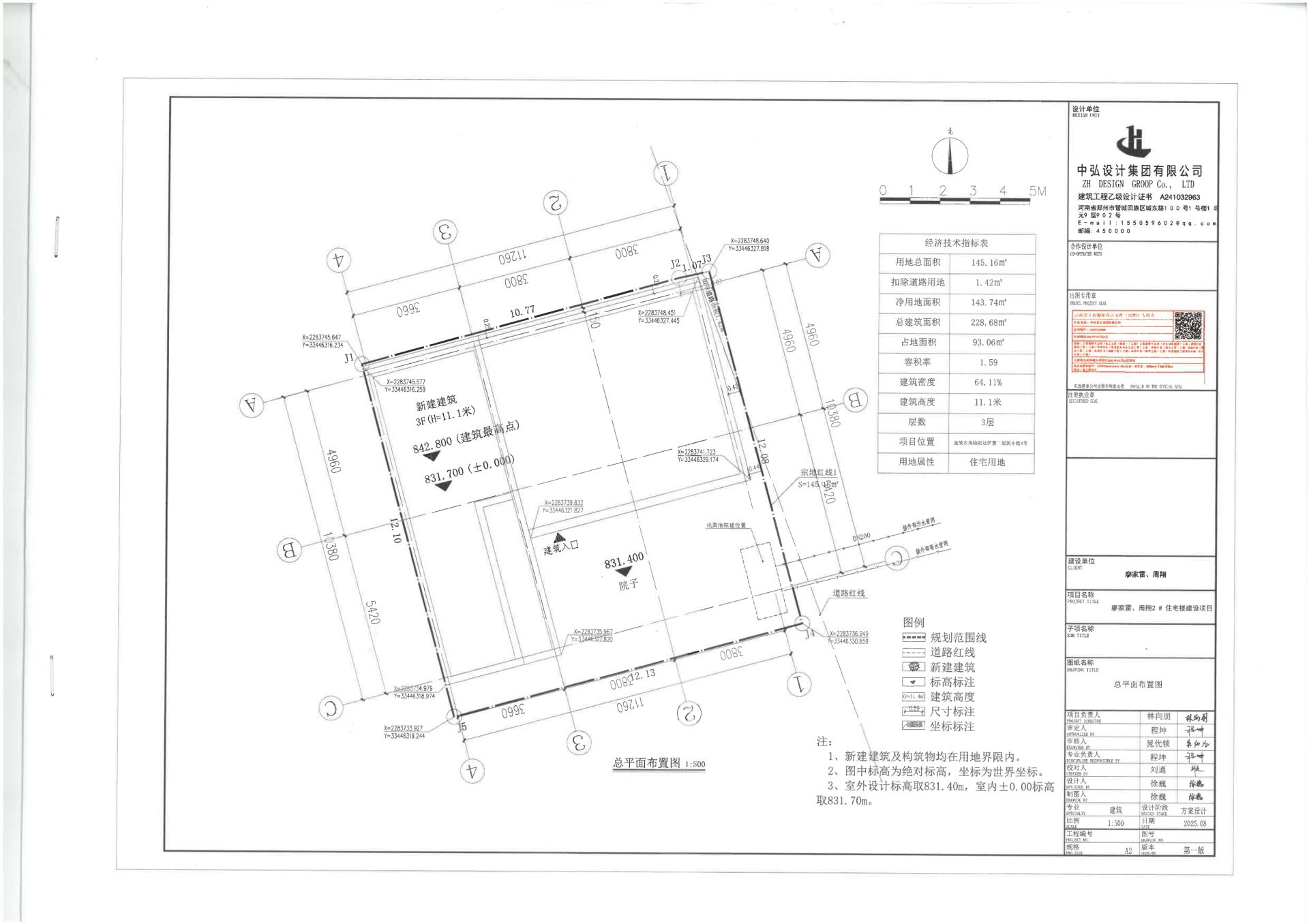
芒市自然资源局

廖家雷、周翔建设工程规划许可批前公示

浏览量:600    作者: 日期:2025/9/22

现将廖家雷、周翔办理建设工程规划许可予以批前公示,公示时间:2025年9月22—2025年9月28日。对公示项目有异议者,请在公示期限内以书面形式将意见和建议反馈到芒市自然资源规划中心(芒市胞波路115号),联系电话:0692-2100556。

 [附件:廖家雷、周翔建设工程总平面图