云南省芒瑞大道工程K25+310连续刚构桥施工监控技术服务招标公开招标公告
交易编号:MSCG(公)2015—041(D)
1. 招标条件
经芒市政府采购管理部门批准,受芒市公路投资有限公司委托,现就云南省芒瑞大道工程K25+310连续刚构桥施工监控技术服务招标进行公开招标,欢迎国内具有合法有效经营资格且有供货及合同履行能力的供应商参加投标。
2. 项目概况
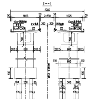
2.1K25+310 大桥跨越芒里电站库区内一河湾,该河湾为原冲沟沟口在电站蓄水后形成。场地交通及通讯均较为方便。桥梁起点桩号 K25+218.940 , 终点桩号K25+401.06,全桥长 182.12m,桥跨为双幅(48+80+48)m,桥梁为预应力连续刚构桥。


2.2 招标编号:YNRBDH2015-033 交易编号:MSCG(公)2015-041(D)
3. 招标范围及工程内容
3.1 招标范围
K25+310连续刚构桥施工监控技术报务。
3.2 招标内容
3.2.1施工监控
根据桥梁结构特点、设计要求和施工方法,本项目芒瑞大道工程K25+310连续刚构桥施工监控的主要内容有:
(1)结构施工监控的相关结构分析;
(2)提交施工监控的实施方案,包含(但不限于)设计图纸和文件;
(3)开展各施工阶段的监控实施工作,包括(但不限于):
① 监控计算参数的采集,包括但不限于以下数据:
a) 混凝土的弹性模量试验及混凝土容重;
b) 气候资料:晴雨、气温;
文章来源:芒市人民政府办公室
滇公网安备 53310302000146号


